
浄化槽・給排水設備は不要!
水洗式トイレ付きユニットハウスで快適に
ユニットハウスと水洗式トイレを
組み合わせることで、
浄化槽が設置できない場所でも
水洗式トイレ付きの快適空間を作ることが可能。
さらに、移動や増設も簡単です。
また、当社の水洗式トイレは、
給排水が無いため上下水道が不要。
限りなく無臭に近いトイレを実現しました!
ユニットハウス と 仮設水洗式トイレを設置
「水洗式トイレ付きユニットハウス」で快適な空間を

「WATUS」はユニットハウス内にも
設置可能です。
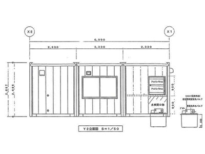
詳しい図面はコチラ▼(PDF)

ユニットハウス×さまざまな使用事例・導入例
ユニットハウスの移設事例
におわない! 環境対策トイレ「ウォータス」
景観や用途に応じてどこにでも
上屋(トイレブース)は、
景観や場所・使用目的などに合わせて、
さまざまなデザインにして頂くことができます。
また、地元産木材を使用すれば、
二酸化炭素の削減にもつながります!
スポーツ・コンサートなどの野外施設に
事務所や控室、更衣室として活用できます。給排水設備が不要で設置後の移動も可能です。芝生も傷めません。
平成・令和 施工実例











































