
ハウス内にトイレがあると室内に嫌な臭いがこもると思っていませんか?
そんなお悩みは当社にお任せください。
スズキハウスサービスが選ばれる理由を紹介します。
※マウスを小画像に重ねると各画像を見ることができます。
![]() | ![]() |
●採掘現場などでの事務所・休憩所 給排水不要 | ●小規模な販売店(車・路面店舗) 移動可 |
![]() | ![]() |
●園芸農家での作業所・事務所など 給排水不要 | ●モータープール・ヤードなどの調整池 |
![]() | ![]() |
●登山口付近での休憩所 給排水不要 | ●工事現場での仮設事務所 トイレ付き事務所 |
![]() | ![]() |
●工場敷地内での休憩所 | ●ソーラー発電敷地内の管理事務所 |
TEL: | 058-383-3984 |
---|---|
mail: | https://www.suzukihouse-service.com/contact.html |
ユニット工法でつくる建物が「ユニットハウス」です。
ユニット工法とは、箱形のユニットの外壁・窓などの建具、電気配線、内装などをあらかじめ完成に近い段階まで工場で仕上げ、現場へ運んで設置・組み立てて建築する、プレハブ工法のひとつです。
ユニットハウス取扱商品 >> |
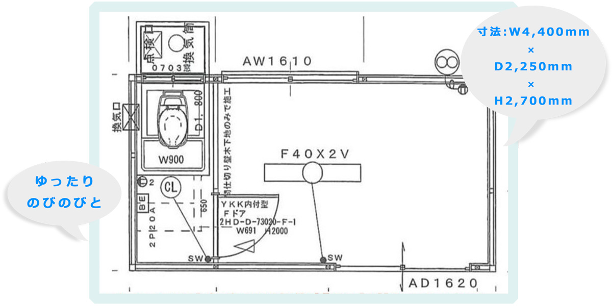
ユニットハウスは、事務所・店舗・休憩室といった一般的な使い方から危険物保管庫や防災倉庫など、ニーズにあわせて、さまざまな用途にご利用いただけます。
中古やレンタルに ついても対応いたします。また、ユニットハウスと常流循環リサイクル方式トイレ「ウォータス」との組み合わせもご提案できますので、お気軽にお問い合わせください。
LCX 28 | |
---|---|
![]() | |
面 積 | 5.89㎡ |
カラー | シルバー・ブルー・ モスグリーン・ブラック |
サイズ | L2945×W2240×H2560mm |
LCX 37 | |
---|---|
![]() | |
面 積 | 7.83㎡ |
カラー | シルバー・ブルー・ モスグリーン・ブラック |
サイズ | L3845×W2240×H2560mm |
LCX 46 | |
---|---|
![]() | |
面 積 | 9.77㎡ |
カラー | シルバー・ブルー・ モスグリーン・ブラック |
サイズ | L4745×W2240×H2560mm |
SH-H2 | |
---|---|
![]() | |
デスクも置ける2坪タイプ。ガラス窓・出入口を同じ面に設けています。 | |
面 積 | 6.75㎡ |
カラー | ベージュ・檜 |
サイズ | W3650×D1850×H2670mm |
SH-H3 | |
---|---|
![]() | |
外階段を設け階建化も可能な3.2坪タイプ。いろいろな用途でご利用になれます。 | |
面 積 | 10.47㎡ |
カラー | ベージュ・檜 |
サイズ | W4550×D2300×H2670mm |
SH-H4 | |
---|---|
![]() | |
ワイド5,450mmで使い勝手のよい3.8坪タイプのスーパーハウスです。 | |
面 積 | 12.54㎡ |
カラー | ベージュ・檜 |
サイズ | W5450×D2300×H2670mm |
SH-H56 | |
---|---|
![]() | |
ユニットを連結することで連棟化が可能なタイプです。連結は完成ユニットをボルトや専用部材で接続するだけの簡単施工。倉庫としての使用など大規模な導入に適し、連棟の2階建ても可能です。 | |
面 積 | 13.05㎡ |
カラー | ベージュ・檜 |
サイズ | W2330×D5600×H2697mm ※1ユニット当たり |
SH-HP56 | |
---|---|
![]() | |
面 積 | 13.05㎡ |
カラー | ベージュ |
サイズ | W2330×D5600×H2697mm ※1ユニット当たり |
<< ユニットハウスとは |